situs judi online . фрибет за пополнение бк

Энциклопедия владельца птицы

Доска объявлений

Куплю:
Продам:
Возьму:
Отдам:

https://www.traditionrolex.com/19

Скворечники и другие домики для птиц




Скворец на скворечнике, автор Emily


С приходом весны солнце начинает греть влажную землю, пробивается травка, на деревьях набухают почки. На родину возвращаются перелетные птицы, готовясь дать жизнь новому поколению. Самое время для строительства домиков для наших пернатых друзей!


Для того, чтобы построить скворечник, нам понадобятся:

  1. доска шириной 20 см и толщиной 1,5-2 см;

  2. гвозди или саморезы;

  3. молоток или отвертка (шуруповерт);

  4. карандаш;

  5. линейка;

  6. ножовка по дереву;

  7. дрель;

  8. перьевое сверло или коронка.

Существует несколько  моделей скворечников, и мы предлагаем вам изготовить один из трех самых распространенных:


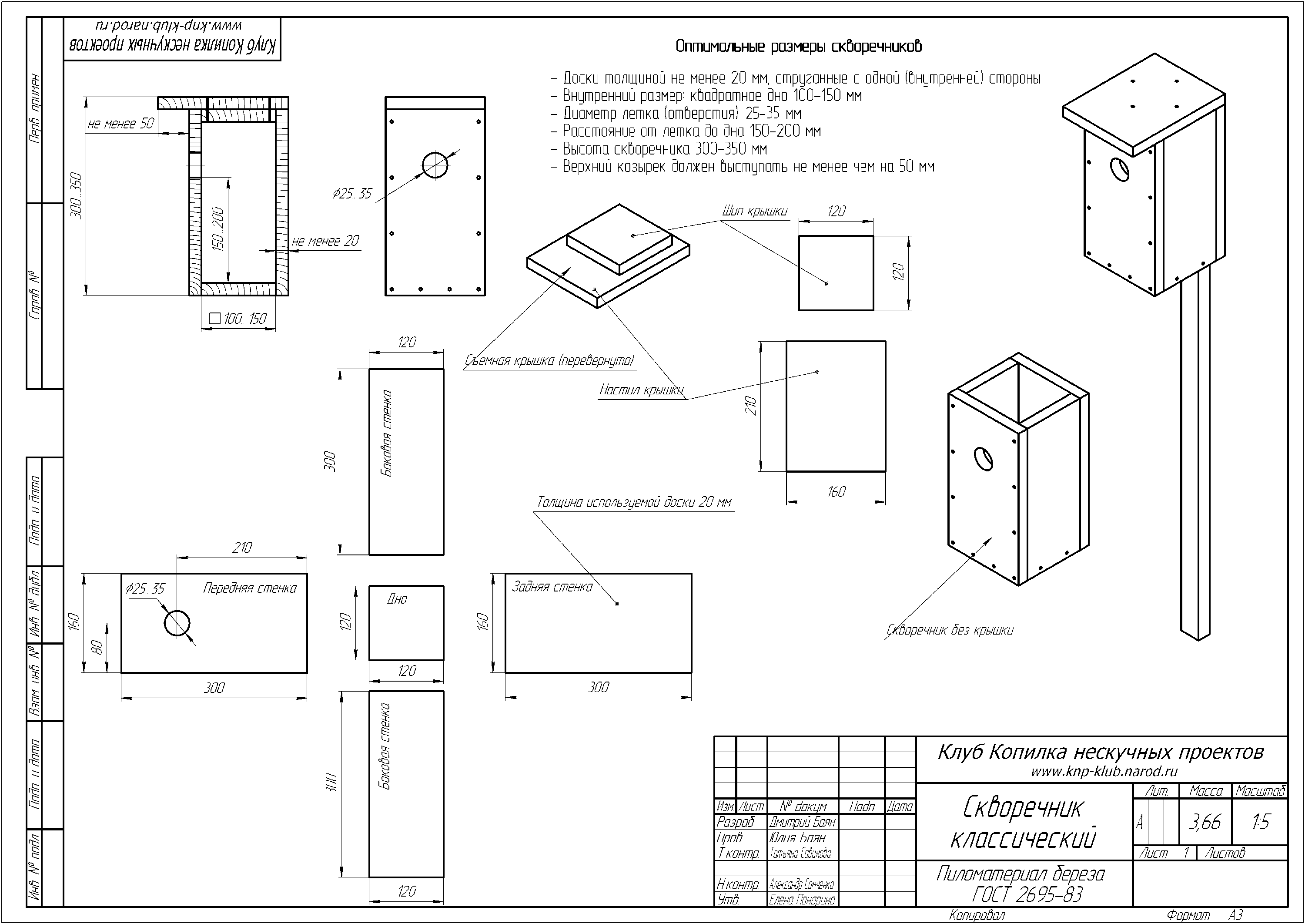
1.  С прямой крышей - самый простой в изготовлении


Чертеж скворечника с прямой крышей


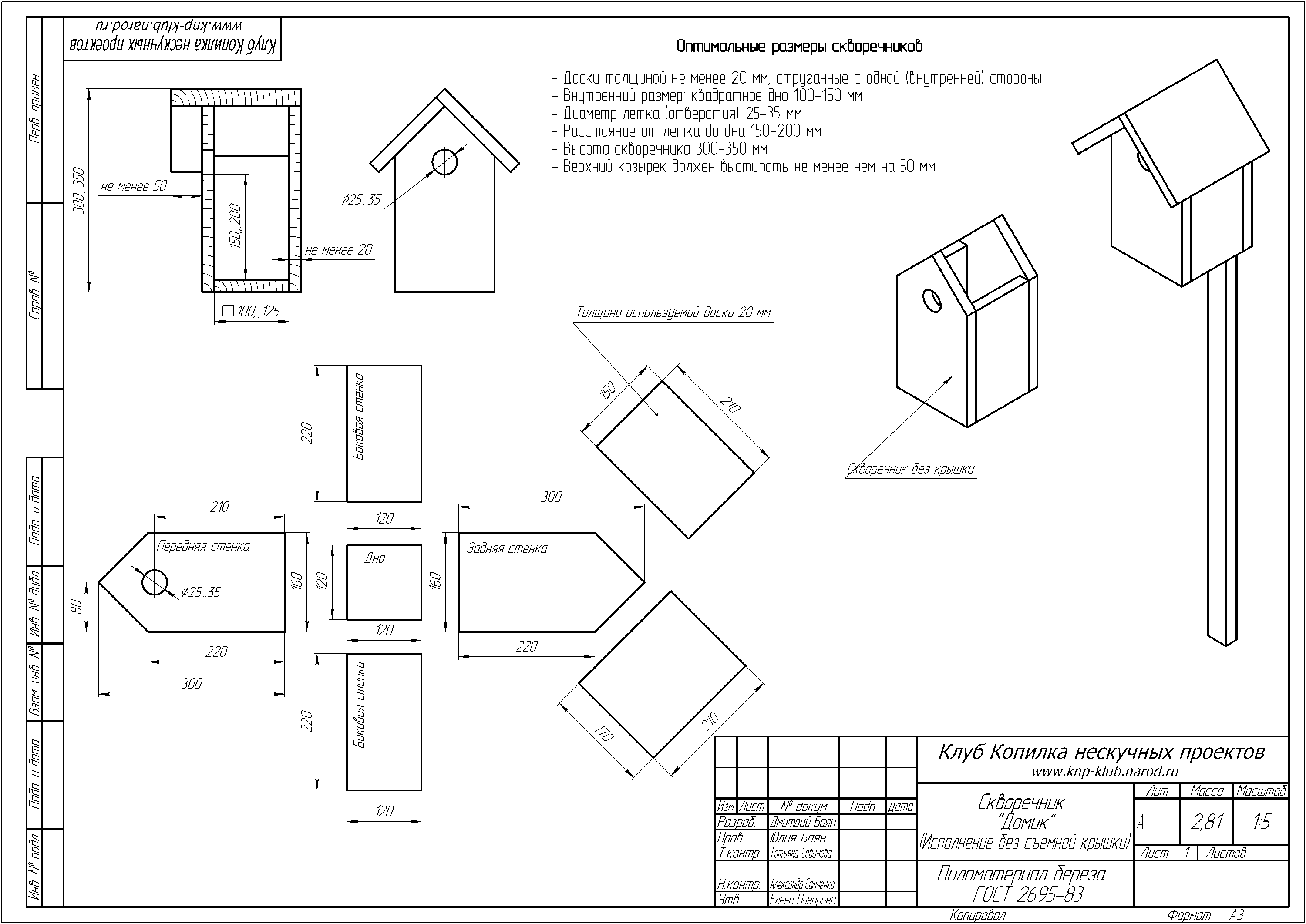
2. С двускатной крышей - популярный, но не очень долговечный скворечник, так как двускатная крыша начнет довольно быстро протекать.


Чертеж скворечника с двускатной крышей


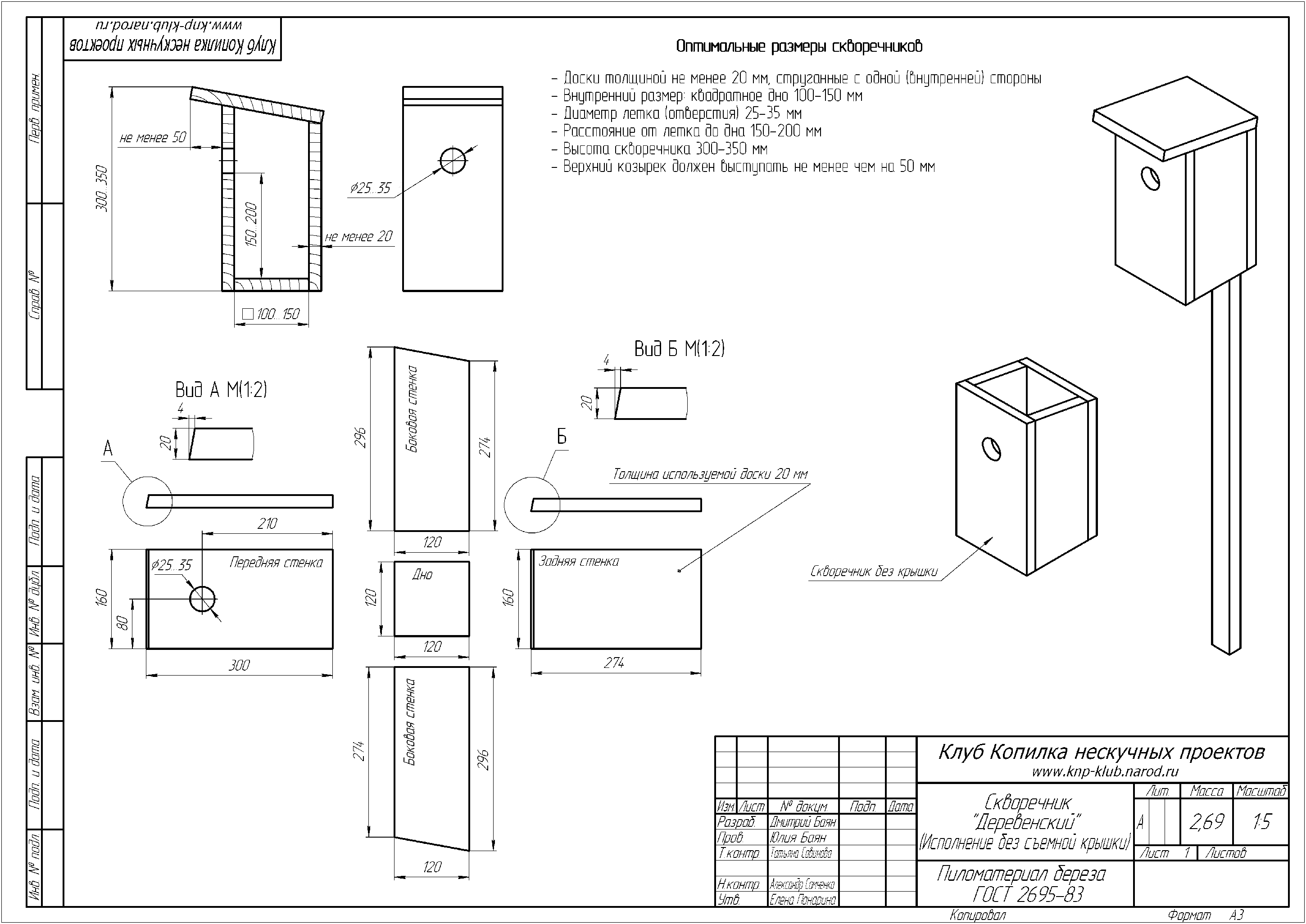
3. С наклонной крышей - самый популярный и практичный домик, так как наклон крыши не позволяет скапливаться дождевой воде.


Чертеж скворечника с наклонной крышей


Скворечник, автор Irisha

Отдельно скажем о домиках для мухоловок и трясогузок, они имеют отличную от уже упомянутых конструкцию. Горихвостки и мухоловки предпочитают гнездовья с открытой передней стенкой (на ½ или 1/3 высоты всего домика). Трясогузки же, поскольку птицы бегающие, не могут цепляться лапками и повисать как синицы. Поэтому для них строят горизонтальные домики с присадной площадкой.

Доски желательно взять лиственных пород деревьев (они не выделяют смолу), сухие и неструганные. Если доска гладкая, ножом или стамеской можно сделать насечки с внутренней стороны домика, чтобы и родители, и птенцы смогли без проблем выбираться наружу. При помощи карандаша и линейки разметьте заготовки нужных размеров и приступайте к сборке, предварительно выпилив леток в передней стенке. На этом этапе нужно решить, для кого будет предназначен домик, так как для разных видов птиц требуется разная величина входного отверстия: для синиц, воробья – 2,5 см, поползня – 3 см, скворца – 3,2-3,5 см.

Обратите внимание на небольшие нюансы, которые станут гарантией успешного выведения птенцов:

  • Не делайте леток слишком большим - он станет причиной гибели выводка от хищных птиц.

  • Жердочку перед входом лучше не устанавливать, жильцам она не обязательна, а вот сорокам и воронам облегчит задачу по разорению гнезда.

  • Подгонять стенки слишком плотно друг к другу не обязательно – имеющиеся небольшие зазоры обеспечат вентиляцию.

  • Крышу нужно сделать съемной, это облегчит чистку домика перед каждым новым гнездовым сезоном. Для этого можно прикрутить крышу саморезом и при необходимости выкручивать его, либо снабдить крышу втулкой, как показано на чертеже, вставить ее на место и прикрутить проволокой к домику, чтобы не сдуло ветром и хищники не могли забраться внутрь.  

  • При сборке внимательно следите, чтобы гвозди или шурупы не проникали внутрь домика, они поранят птиц!

  • Красить скворечник нежелательно, птицы скорее выберут домик, который посерел от времени, чем яркую и дурно пахнущую квартирку.

  • К задней стенке домика следует прикрепить планку, за которую он будет подвешен на дерево или шест.


Вот и все, наш домик готов!

Скворечник, автор Irisha

При установке скворечник следует расположить так, чтобы леток был ориентирован на восток, высота установки – не менее 2 м от земли. Защитить гнездо от посягательств кошек можно, закрепив на стволе дерева или шеста «юбочку», сделанную из пластиковой пятилитровой бутылки с отрезанным горлышком и дном. Также следует обезопасить домик и от возможных пернатых вредителей: уберите расположенные поблизости большие ветки или другие возможные присады, которые могут быть использованы хищниками для опоры при вынимании птенцов.

При установке домиков для птиц в саду следует учесть, что лесные певчие птички будут лучшим подспорьем в борьбе с насекомыми-вредителями, чем скворцы, которые, конечно, съедят гусениц весной, но и не преминут полакомиться ягодами позже.


Хороший крепкий скворечник послужит не только для выведения птенцов, но и обеспечит зимующих птиц укрытием и местом для запасов зимой.


Воробей, автор Emily


Материал подготовила  Irisha совместно с другими модераторами форума

Чертежи домиков предоставлены клубом Копилка нескучных проектов

https://www.traditionrolex.com/19